
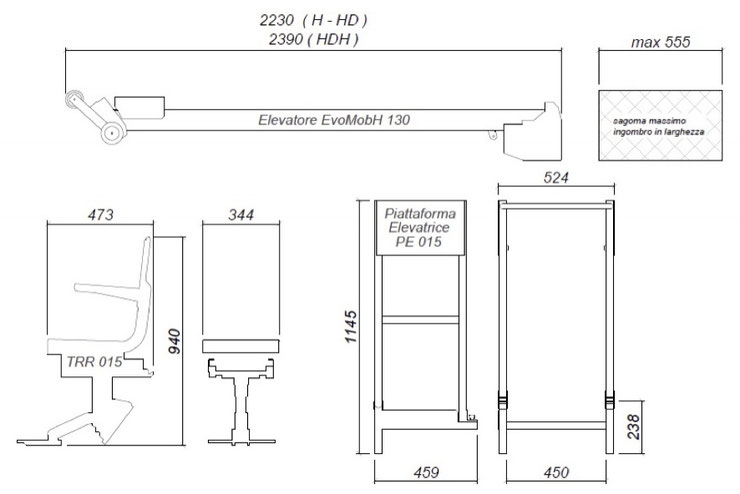
EvoMobh: Le Dimensioni
EvoMobh è un "sistema di mobilità" innovativo costituito dalle seguenti dimensioni.
GADLift
3/3/20231 min read


Location
Via San Prospero 21, Correggio, RE 42015
Contacts
info@gadlift.com

Partita Iva GADLift 02688020359 • Termini e Condizioni • Privacy Policy
